Explore Custom Floor Plans in Lafayette
Majestic Homes in West Lafayette, IN, offers a wide selection of flexible custom home floor plans tailored to your needs and style.
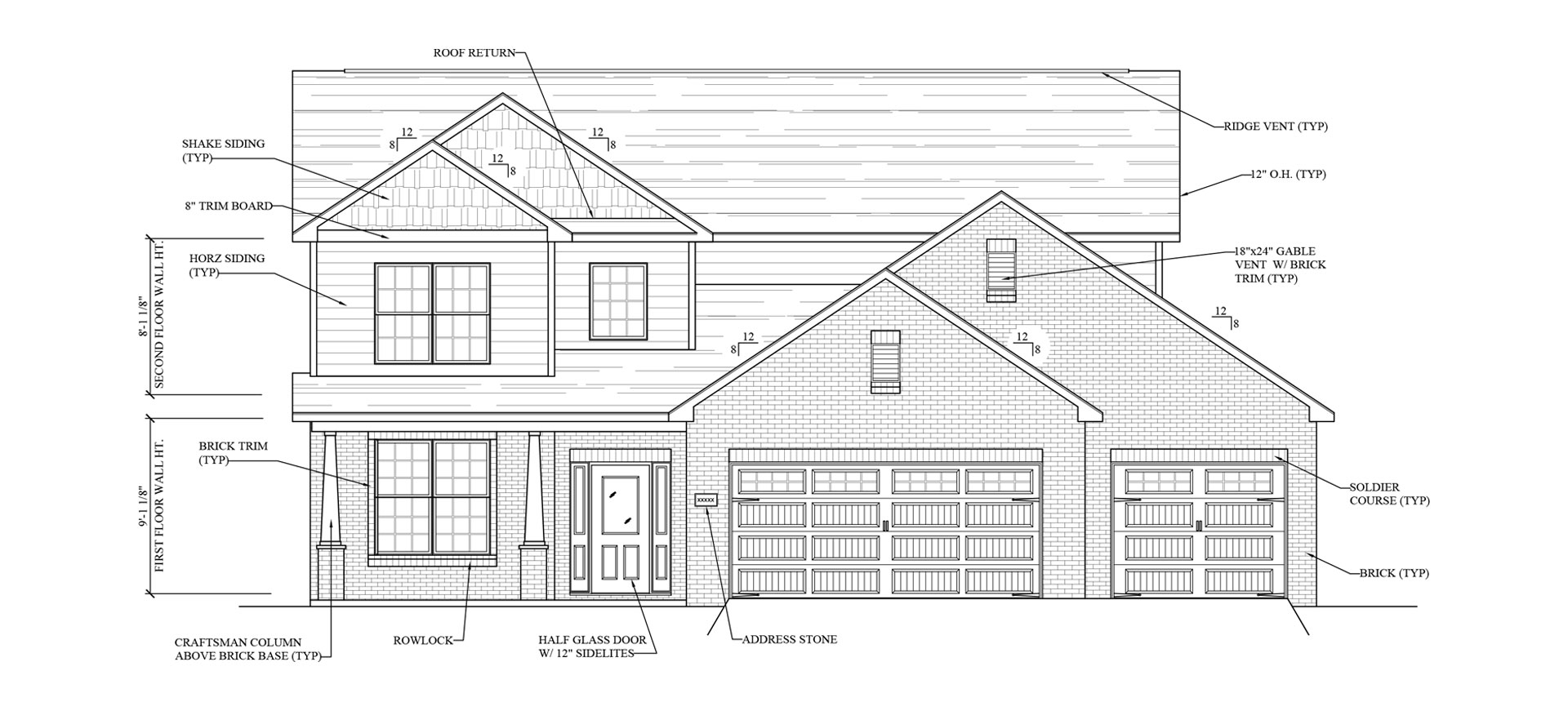
Lafayette Floor Plans
-
Series
-
Bedrooms
-
Bathrooms
-
Garage
-
Floors
- Sq. Ft.
Our team is here to help you personalize every detail.








































